Kurzbeschreibung
Dachgeschoss-Rohling mit Ausbaupotenzial in Berlin-Neukölln, mit einer Gesamt-Wohnfläche von etwa 178,25 m2 (273,58 m2 - rohe Grundfläche).
*deutsch : Dieses Exposé ist in deutscher, englischer und russischer Sprache vorhanden.
*English : This Expose is available in German, English and Russian language.
*русский : Это Экспозиция доступна на немецком, английском и русском языкe.
*Njemački: Ovaj sinopsis dostupan je na njemačkom, engleskom i ruskom jeziku.
Social-Media:
Facebook-link: https://www.facebook.com/avimmobilienberlin/
Instagram-link: https://www.instagram.com/avimmobilienberlin/
Beschreibung
Zum Verkauf steht ein Dachgeschoss-Rohling in einem klassischen Berliner Altbau an der Braunschweiger Straße in Berlin-Neukölln.
Das Wohnhaus umfasst insgesamt 22 Wohneinheiten, wovon 3 Einheiten mit etwa 178,25 m2 Wohnfläche zum Dachgeschoss-Rohling gehören.
Die rohe Grundfläche inklusive des Anteils des Treppenhauses und Kaminzüge betragen 273,58 m2.
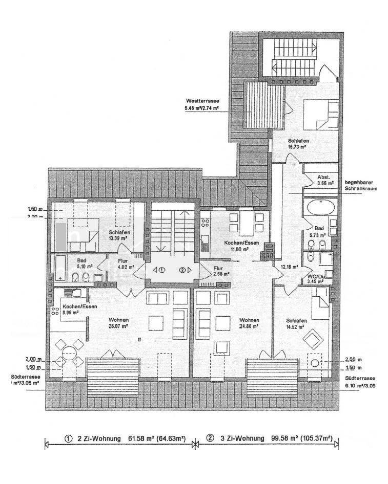
Laut Teilungserklärung sind im Dachgeschoss drei Wohneinheiten vorgesehen:
--ca. 68,85 m²
--ca. 58,24 m²
--ca. 41,50 m²
Für das Objekt lag in der Vergangenheit ein Bauantrag vor, der die Realisierung von zwei Wohneinheiten vorsah:
--2-Zimmer-Wohnung mit ca. 61,58 m² (64,63 m² nach Wohnflächenberechnung)
--3-Zimmer-Wohnung mit ca. 99,58 m² (105 m² nach Wohnflächenberechnung)
Dieser Bauantrag wurde nicht umgesetzt; eine erneute Beantragung ist erforderlich.
Der Dachgeschossbereich bietet flexible Gestaltungsmöglichkeiten – sowohl nach Teilungserklärung als auch im Rahmen einer neuen Planung.
Die Substanz des Altbaus, die urbane Lage und die Nähe zu Cafés, Restaurants sowie zum Tempelhofer Feld machen das Objekt besonders attraktiv für Eigennutzer und Investoren.
Ausstattung
Ausstattung / Highlights – Dachgeschoss-Rohling
Allgemein:
-Dachgeschoss-Rohling mit flexiblem Ausbaupotenzial
-Klassischer Berliner Altbaucharme
-Vorhandene, alte Baugenehmigung für zwei Wohneinheiten – neue Genehmigung erforderlich
Geplante 2-Zimmer-Wohnung:
-Wohnfläche: ca. 61,58 m² (64,63 m² nach Wohnflächenberechnung)
-Süd-Terrasse für sonniges Wohnen
-Offene Gestaltung möglich
Geplante 3-Zimmer-Wohnung:
-Wohnfläche: ca. 99,58 m² (105,37 m² nach Wohnflächenberechnung)
-Zwei Terrassen: Süd- und Westausrichtung
-Abstellkammer, 1 Bad, 1 separates WC
-Zwei Zugänge: Eingang vom Vorderhaus und Zugang über den Seitenflügel
-Flexible Grundrissgestaltung möglich
Besonderheiten:
-Jede Wohnung kann individuell gestaltet werden, Grundrisse können an aktuelle Bedürfnisse angepasst werden
-Attraktive urbane Lage in Berlin-Neukölln, Nähe Tempelhofer Feld
-Hohe Wertsteigerungspotenziale durch Dachausbau
Lage
Die Braunschweiger Straße befindet sich im nördlichen Teil von Berlin-Neukölln und zählt zu den gefragten innerstädtischen Wohnlagen des Bezirks. Das Umfeld ist geprägt von klassischer Berliner Altbausubstanz, lebendiger Kiezkultur und einer gewachsenen Infrastruktur.
In fußläufiger Entfernung befinden sich zahlreiche Cafés, Restaurants, Einkaufsmöglichkeiten sowie Dienstleistungsangebote des täglichen Bedarfs. Die Nähe zum weitläufigen Freizeit- und Erholungsgebiet Tempelhofer Feld bietet zusätzlichen Wohn- und Freizeitwert.
Die Anbindung an den öffentlichen Nahverkehr ist sehr gut; mehrere U-Bahn- und Buslinien gewährleisten eine schnelle Verbindung in die Innenstadt von Berlin sowie in angrenzende Bezirke.
Die Lage zeichnet sich durch ein urbanes, internationales Umfeld mit stetiger Nachfrage und positiver Entwicklungsperspektive aus.
Sonstiges
Hinweis für Interessenten:
Wir bitten Sie, bei Ihrer Anfrage vollständige Kontaktdaten anzugeben – einschließlich Name, Anschrift, Telefonnummer und E-Mail-Adresse. Ohne diese Angaben können wir leider keine weiteren Unterlagen versenden.
Alle Angaben basieren auf Informationen des Eigentümers sowie den uns vorliegenden Objektunterlagen und wurden mit größter Sorgfalt zusammengestellt.
Irrtümer und Zwischenverkauf bleiben vorbehalten.
Rechtlich bindend ist ausschließlich ein notariell beurkundeter Kaufvertrag.
Sie möchten Ihre Immobilie verkaufen?
Als Eigentümer erhalten Sie von uns eine kostenfreie und unverbindliche Marktwerteinschätzung Ihrer Immobilie.
Dank unseres umfassenden Kunden-Netzwerks – national wie international – können wir bereits den passenden Käufer für Sie vermitteln.
Wir begleiten Sie zuverlässig bei allen technischen und rechtlichen Aspekten des Verkaufsprozesses, von der marktgerechten Bewertung bis zur finalen Übergabe.
Weitere Immobilienangebote & Finanzierungsmöglichkeiten:
Eine Auswahl attraktiver Immobilien – ob bezugsfrei oder vermietet – finden Sie auf unserer Website:
www.av-immobilien-berlin.de
Darüber hinaus bieten wir in Kooperation mit unserem Netzwerk nachhaltige Finanzierungslösungen, passend zu Ihrem Vorhaben.
Kontakt:
Für Rückfragen oder persönliche Beratung erreichen Sie mich direkt unter:
Telefon: +49 (0)176 84055531
Aleksander Vukas
Immobilienfachwirt & Immobilien-Ökonom
AV Immobilien Berlin – Real Estate Consulting & Agency, Projects
Außenausstattung
-
Keller
-
Garten/mitbenutzung
Energie Effizienz
Energieausweis
- Energieausweistyp: Verbrauchsausweis
- Energie Effizienz: 96 kWh EP / m2, year
- Endenergiebedarf: kWh/(m²*a)
- Energieeffizienzklasse: C
- Baujahr: 1914
- Heizungsart: Gas-Heizung
- Wesentlicher Energieträger: Gas
- gesetzliche Pflichtangaben Energieausweis: Energieausweis liegt für das Gebäude vor
- Erstellungsdatum: ab 1. Mai 2014 (EnEV 2014)
- Energieausweis gültig bis: 24.07.2028
Bildergalerie
Grundriss
Facebook- Kommentare
Agent andere Güter
-
Hochwertig sanierte 3-Zimmer-Wohnung inmitten grün gelegener Häuser-Wohnalage von Berlin-Westend, vollständig möbliert
Immobilientyp Eigentumswohnung
Fläche bis 70m²
Zimmer 3.00




Inmitten ruhiger, grün gelegener Wohnlage von Berlin-Westend präsentiert sich…
€ 319.000
Einzelheiten
-
Charmante, bezugsfreie 2-Zimmer-Wohnung mit Balkon und Grünblick in Potsdam-Drewitz
Immobilientyp Eigentumswohnung
Fläche bis 70m²
Zimmer 2.00

Die gepflegte 2-Zimmer-Wohnung in der 2. Etage verfügt über einen Balkon zur ruhigen…
€ 233.000
€ -
Einzelheiten
-
Baureifes Projektgrundstück in Berlin-Reinickendorf – Neubau 14 Wohnungen & wertsteigernde Stadtvilla
Immobilientyp Grundstücke
Fläche über 250m²
Zimmer -
Baugrundstück mit Baugenehmigung nach §34 BauGB – Mehrfamilienhaus (14 Wohneinheiten,…
€ 2.200.000
Einzelheiten
-
Erschlossenes Baugrundstück für Ihr Ein- oder Zweifamilienhaus in ruhiger Lage von Berlin-Müggelheim
Immobilientyp Grundstücke
Fläche über 250m²
Zimmer -
Sofort startklar: Erschlossenes Baugrundstück für Ihr Ein- oder Zweifamilienhaus…
€ 155.000
Einzelheiten
-
Frisch renovierte 3-Zimmer-Wohnung mit Balkon/Loggia & Tiefgarage in Berlin-Lankwitz
Immobilientyp Eigentumswohnung
Fläche 70-150m²
Zimmer 3.00

Charmante 3-Zimmer-Wohnung mit hochwertiger Ausstattung und Wohlfühlfaktor in Berlin-Lankwitz,…
€ 589.000
€ -
Einzelheiten
-
Großzügige 2-Zimmer Wohnung mit Balkon, in ruhiger Wohnanlage in Berlin-Westend
Immobilientyp Eigentumswohnung
Fläche bis 70m²
Zimmer 2.00

Helle 2-Zimmer-Wohnung mit Balkon, TG-Stellplatz in ruhiger Wohnanlage in Berlin-Westend,…
€ 335.000
€ 500
Einzelheiten
-
Gemütliche, hochwertig ausgestattete und möblierte 1-Zimmer-Wohnung in zentraler Tempelhof-Lage zwischen drei Parkanlagen
Immobilientyp Eigentumswohnung
Fläche bis 70m²
Zimmer 1.00




Gemütliche, hochwertig ausgestattete und möblierte 1-Zimmer-Wohnung in zentraler…
€ 299.000
€ -
Einzelheiten
-
Möbliertes 2-Zimmer-Apartment am Halensee (Grunewald) – renoviert & bezugsfrei
Immobilientyp Eigentumswohnung
Fläche bis 70m²
Zimmer 2.00




2-Zimmer-Apartment am Halensee (Grunewald), komplett renoviert und möbliert, bezugsfrei-direkt…
€ 345.000
Einzelheiten
-
Renditestarkes Mehrfamilienhaus – 6 Einheiten im Erstbezug plus Entwicklungspotenzial auf dem Grundstück
Immobilientyp Mehrfamilienhaus
Fläche über 250m²
Zimmer -

Mehrfamilienhaus mit 6 Wohneinheiten im Erstbezug nach umfassender Vollsanierung.…
€ 350.000
€ -
Einzelheiten