Kurzbeschreibung
Charmante, bezugsfreie 2,5-Zimmer-Dachgeschosswohnung mit Stellplatz in Großziethen-Schönefeld
*deutsch : Dieses Exposé ist in deutscher, englischer und russischer Sprache vorhanden.
*English : This Expose is available in German, English and Russian language.
*русский : Это Экспозиция доступна на немецком, английском и русском языкe.
*Njemački: Ovaj sinopsis dostupan je na njemačkom, engleskom i ruskom jeziku.
Social-Media:
Facebook-link: https://www.facebook.com/avimmobilienberlin/
Instagram-link: https://www.instagram.com/avimmobilienberlin/
Beschreibung
Objektbeschreibung:
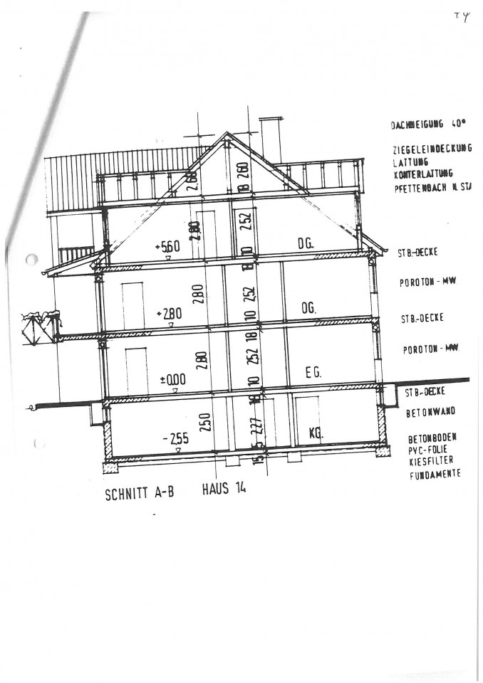
Diese gepflegte 2,5-Zimmer-Dachgeschosswohnung mit einer Wohnfläche von ca. 64 m² (architektonisch vermessen) und einer Grundfläche von ca. 73 m² befindet sich im 2. Obergeschoss eines zweigeschossigen Wohnhauses in Großziethen/Schönefeld, unmittelbar an der südlichen Berliner Stadtgrenze.
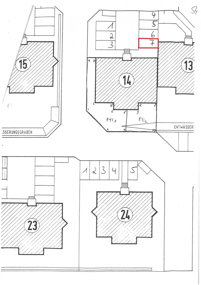
Die Wohnung liegt in einer kleinen, ruhigen und sehr gepflegten Wohnanlage mit lediglich sieben Wohneinheiten, die eine überschaubare und harmonische Wohnungseigentümergemeinschaft bilden. Die Instandhaltungsrücklage beträgt derzeit ca. 28.000 €. Größere Instandsetzungs- oder Sanierungsmaßnahmen sind aktuell nicht vorgesehen.
Das Gebäude wurde im Jahr 1996 errichtet. Die Heizungsanlage wurde zuletzt im Jahr 2025 modernisiert, die Fassadensanierung erfolgte im Jahr 2020. Beheizt wird das Haus über eine Gasheizung.
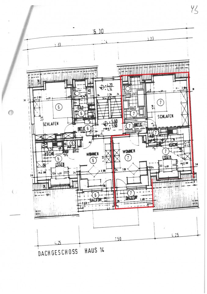
Die Wohnung verfügt über 2,5 Zimmer, eine offene Küche mit Einbauküche und angrenzendem Abstellraum, ein Badezimmer sowie einen sonnigen Südwestbalkon, der zum Verweilen und Entspannen einlädt. Ein Stellplatz befindet sich direkt vor dem Hauseingang.
Ergänzend gehört zur Wohnung ein ca. 15 m² großer Hobbyraum im Untergeschoss mit zwei Fenstern und einer Raumhöhe von ca. 2,20 m.
Die Wohnung ist bezugsfrei und ab sofort verfügbar. Die Wohnanlage liegt außerhalb der Einflugschneise und ist somit vom Fluglärm nicht betroffen.
Ausstattung
Ausstattung:
-Bodentiefe Fenster im Wohnbereich
-Teilweise möbliert
-Isolierverglaste Kunststofffenster
-Tageslichtbad mit Fenster
-Balkon
-Moderne Einbauküche
Flächenangaben gemäß Wohnflächenverordnung (WoFlV):
-Wohnfläche ca. 61,9 m² bei 1/4-Anrechnung der Balkonfläche
-Wohnfläche ca. 63,6 m² bei 1/2-Anrechnung der Balkonfläche
-Grundfläche ca. 72,9 m²
Zusätzlicher Keller-/Hobbyraum mit ca. 15 m² Nutzfläche
-Außenstellplatz direkt vor dem Haus (Kaufpreis zusätzlich 10.000 €)
Lage
Lage:
Großziethen ist ein Ortsteil der Gemeinde Schönefeld und grenzt unmittelbar an den Berliner Bezirk Lichtenrade. Die Lage verbindet ruhiges Wohnen mit einer sehr guten Anbindung an die Berliner Innenstadt sowie an das Umland.
Mit dem Pkw erreichen Sie den Flughafen Berlin Brandenburg (BER) in ca. 17 Minuten. Der Britzer Garten sowie die vielfältigen gastronomischen Angebote in Neukölln sind in etwa 10 Minuten erreichbar. Der S-Bahnhof Lichtenrade liegt rund 3,5 km entfernt und bietet mit der Linie S2 eine schnelle Verbindung: Der Bahnhof Südkreuz ist in ca. 14 Minuten, der Potsdamer Platz in etwa 20 Minuten erreichbar.
Eine Bushaltestelle befindet sich direkt vor der Wohnanlage an der Lichtenrader Chaussee und gewährleistet eine komfortable Anbindung an den öffentlichen Nahverkehr. Einkaufsmöglichkeiten des täglichen Bedarfs, darunter ein REWE-Markt, befinden sich in fußläufiger Entfernung von ca. 500 Metern. Schulen aller Schulformen (Grundschule, Oberschule und Gymnasium) sind ebenfalls in der näheren Umgebung vorhanden.
Die Umgebung und Mikrolage lassen sich über Google Street View anhand der Wohnungsadresse bequem vorab erkunden.
Sonstiges
Hinweis für Interessenten:
Wir bitten Sie, bei Ihrer Anfrage vollständige Kontaktdaten anzugeben – einschließlich Name, Anschrift, Telefonnummer und E-Mail-Adresse. Ohne diese Angaben können wir leider keine weiteren Unterlagen versenden.
Alle Angaben basieren auf Informationen des Eigentümers sowie den uns vorliegenden Objektunterlagen und wurden mit größter Sorgfalt zusammengestellt.
Irrtümer und Zwischenverkauf bleiben vorbehalten.
Rechtlich bindend ist ausschließlich ein notariell beurkundeter Kaufvertrag.
Sie möchten Ihre Immobilie verkaufen?
Als Eigentümer erhalten Sie von uns eine kostenfreie und unverbindliche Marktwerteinschätzung Ihrer Immobilie.
Dank unseres umfassenden Kunden-Netzwerks – national wie international – können wir bereits den passenden Käufer für Sie vermitteln.
Wir begleiten Sie zuverlässig bei allen technischen und rechtlichen Aspekten des Verkaufsprozesses, von der marktgerechten Bewertung bis zur finalen Übergabe.
Weitere Immobilienangebote & Finanzierungsmöglichkeiten:
Eine Auswahl attraktiver Immobilien – ob bezugsfrei oder vermietet – finden Sie auf unserer Website:
www.av-immobilien-berlin.de
Weiterhin bieten wir in Kooperation mit unserem Netzwerk nachhaltige Finanzierungslösungen, passend zu Ihrem Vorhaben.
Kontakt:
Für Rückfragen oder persönliche Beratung erreichen Sie mich direkt unter:
Telefon: +49 (0)176 84055531
Aleksander Vukas
Immobilienfachwirt & Immobilien-Ökonom
AV Immobilien Berlin – Real Estate Consulting & Agency, Projects
Außenausstattung
-
Balkon
-
Grill
-
Parkplätze
-
Keller
-
Garten/mitbenutzung
Energie Effizienz
Energieausweis
- Energieausweistyp: Verbrauchsausweis
- Energie Effizienz: 134.20 kWh EP / m2, year
- Endenergiebedarf: kWh/(m²*a)
- Energieeffizienzklasse: D
- Baujahr: 1996
- Heizungsart: Gas-Heizung
- Wesentlicher Energieträger: Gas
- gesetzliche Pflichtangaben Energieausweis: Energieausweis liegt für das Gebäude vor
- Erstellungsdatum: ab 1. Mai 2014 (EnEV 2014)
- Energieausweis gültig bis: 30.11.2027
Bildergalerie
Grundriss
Facebook- Kommentare
Agent andere Güter
-
Baureifes Projektgrundstück in Berlin-Reinickendorf – Neubau 14 Wohnungen & wertsteigernde Stadtvilla
Immobilientyp Grundstücke
Fläche über 250m²
Zimmer -
Baugrundstück mit Baugenehmigung nach §34 BauGB – Mehrfamilienhaus (14 Wohneinheiten,…
€ 2.200.000
Einzelheiten
-
Ausbaupotenzial im Herzen von Berlin-Neukölln – Dachgeschoss-Rohling mit Entwicklungschance
Immobilientyp Eigentumswohnung
Fläche 150m² - 250m²
Zimmer 5.00
Dachgeschoss-Rohling mit Ausbaupotenzial in Berlin-Neukölln, mit einer Gesamt-Wohnfläche…
€ 259.000
€ -
Einzelheiten
-
Erschlossenes Baugrundstück für Ihr Ein- oder Zweifamilienhaus in ruhiger Lage von Berlin-Müggelheim
Immobilientyp Grundstücke
Fläche über 250m²
Zimmer -
Sofort startklar: Erschlossenes Baugrundstück für Ihr Ein- oder Zweifamilienhaus…
€ 155.000
Einzelheiten
-
Frisch renovierte 3-Zimmer-Wohnung mit Balkon/Loggia & Tiefgarage in Berlin-Lankwitz
Immobilientyp Eigentumswohnung
Fläche 70-150m²
Zimmer 3.00

Charmante 3-Zimmer-Wohnung mit hochwertiger Ausstattung und Wohlfühlfaktor in Berlin-Lankwitz,…
€ 589.000
€ -
Einzelheiten
-
2-Zimmer-Erdgeschoss-Wohnung mit Süd-Balkon in angenehmer Wohnlage in Berlin-Adlershof
Immobilientyp Eigentumswohnung
Fläche bis 70m²
Zimmer 2.00
2-Zimmer-Erdgeschoss-Wohnung mit Süd-Balkon in angenehmer Wohnlage in Berlin-Adlershof,…
€ 154.900
Einzelheiten
-
Großzügige 2-Zimmer Wohnung mit Balkon, in ruhiger Wohnanlage in Berlin-Westend
Immobilientyp Eigentumswohnung
Fläche bis 70m²
Zimmer 2.00

Helle 2-Zimmer-Wohnung mit Balkon, TG-Stellplatz in ruhiger Wohnanlage in Berlin-Westend,…
€ 335.000
€ 500
Einzelheiten
-
Gemütliche, hochwertig ausgestattete und möblierte 1-Zimmer-Wohnung in zentraler Tempelhof-Lage zwischen drei Parkanlagen
Immobilientyp Eigentumswohnung
Fläche bis 70m²
Zimmer 1.00




Gemütliche, hochwertig ausgestattete und möblierte 1-Zimmer-Wohnung in zentraler…
€ 299.000
€ -
Einzelheiten
-
Möbliertes 2-Zimmer-Apartment am Halensee (Grunewald) – renoviert & bezugsfrei
Immobilientyp Eigentumswohnung
Fläche bis 70m²
Zimmer 2.00




2-Zimmer-Apartment am Halensee (Grunewald), komplett renoviert und möbliert, bezugsfrei-direkt…
€ 345.000
Einzelheiten
-
Renditestarkes Mehrfamilienhaus – 6 Einheiten im Erstbezug plus Entwicklungspotenzial auf dem Grundstück
Immobilientyp Mehrfamilienhaus
Fläche über 250m²
Zimmer -

Mehrfamilienhaus mit 6 Wohneinheiten im Erstbezug nach umfassender Vollsanierung.…
€ 350.000
€ -
Einzelheiten